こんにちは!ミセガマエヤの井上です。
コロナの脅威が日本全国に拡大中ですが、皆様はいかがお過ごしでしょうか?
不安いっぱいの世の中ですが、そんな時こそ笑顔を忘れずに前向きに生きていきたいものですね😊✨
さてさて今日はそんな嫌な気分も晴らしてくれるような、素敵なお家をご紹介したいと思います!
約70㎡のマンションにご家族4人暮らしをされており、『家族時間』と『自分時間』の両方を大切に暮らされています。
是非あなたの「家づくり」の参考にして見て下さい!
それでは早速Let’s go~~!!!
| 「自分時間」と「家族時間」の両方を大切にできるお家 |
約70㎡の広さのこちらのマンション。
ご主人はプロのカメラマンをされているので、在宅勤務でお仕事をされることもしばしば。
そのため「家族の時間」を大切にしながらも「個人の時間」も大切にできるプライベートな空間を確保する必要がありました。
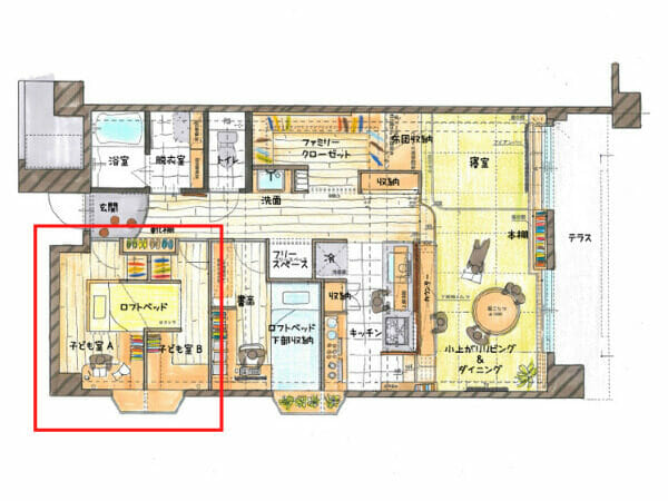
| 縦の空間を最大限生かす |
こちらはカメラマンをされているご主人のお部屋です。限られたスペースを最大限広く使って頂けるように、ロフトベッドなどで縦の空間を生かした間取りに。
机や本棚も「造作家具」でこのお部屋に最適な大きさにぴったりと収まる仕様に。適材適所に収納を設けることで、お部屋を広く使えて、散らかることもありません。
デスクの下は、コンセントだらけです(笑)これだけあればカメラや収録機材の充電も困りません。
子ども部屋はベッドの上下で部屋を2つに分けました。
ベッドで部屋を仕切ることでプライベートな空間をしっかり確保!
喧嘩にならないようにどちらの部屋も平等の広さになっております♪
そして勉強するときに目を悪くしないように、窓際にデスクを作りました。またご主人の部屋同様に、デスク収納を「造作家具」で作っています。わざわざ家具を買わなくても収納に困らないお部屋です。
| ファミリークローゼットで服は一か所にまとめちゃえ! |
クローゼットを各部屋に配置するとなると、その分だけ部屋は狭くなってしまいますが、一か所に「ファミリークロゼット」を作れば、個人部屋を広くすることが可能です😁
しかも一か所に服を収納できるので、洗濯して収納するときも、各部屋に配達する必要がなくなるのでとっても便利♪主婦には嬉しいポイントですね🧐✨
| 洗面台は見せてなんぼ!!! |
こちらの間取りをよーく見て頂くと一般的な家とは少し異なるところがあります。
ずばり「洗面台」の位置!
一般的には「洗面台」は「洗面脱衣所」の中に設けられていますが、こちらのお宅ではあえて玄関からリビングの間の廊下に丸出しに配置しています。
この配置にすることで「洗面脱衣所」のスペースを広く取ることが出来るので、お風呂に入る時もゆったりお着換えしていただけます。
また朝のラッシュ時も狭いスペースに込み合うことがなく快適に過ごすことが出来ます。
| リビングの「小上がり」がもたらす効能! |
そして最後はリビングです。こちらのリビング実は「小上がり」になっております。
「小上がり」にすることで、あとから机や椅子といった家具を置く必要がないので、最大限広々使って頂くことが出来ます。
またリビングを「小上がり」にすることで、キッチンに立つお母さんとリビングでくつろぐ家族との目線がつながるため、孤独感を感じません。
そしてキッチンは回遊導線にしているため、ご家族でキッチンに立っていても混雑することはありません。こういった間取りの少しの工夫が、イライラしない暮らしに直結しているのだと思います🧐
| 「自分時間」と「家族時間」を大切にするために。 |
●ロフトで縦空間を生かす。
●ファミリークロゼットで洋服は一か所にまとめる!
●洗面台はあえて外に配置する!
●リビングは小上がりに!
こういった工夫をすることで「自分時間」と「家族時間」の両方を大切にできる暮らしを実現しました!是非皆様の家づくりの参考にして頂ければと思います。
| 今回ご紹介のお宅は70㎡と割と一般的なお家でしたが、ミセガマエヤは京都ならではの狭小住宅のお家のリノベーションも数多く手がけております。「狭いお家でお困りの方」や「狭いお家でも広々快適に過ごしたい!」とお考えの方も、是非一度相談ください!《問い合わせ&ご相談はこちらから》 |
必ず快適な暮らしを実現致します。
それでは今日も素敵な一日をお過ごしください!




















-1500x894.jpg)