皆様こんにちは!ミセガマエヤの井上です🥰
今回は待ちに待った新企画!題して【家づくりの軌跡】をお送りしたいと思います!【家づくりの軌跡】とはこれから施工されるお客様の家づくりに密着し、プラン作成から完成引き渡しまでの過程をタイムリーにお届けしようじゃないか!といった企画となっております。
『家づくりって実際どんな風に進むんやろ?』
『ミセガマエヤの家づくりってどんなんかが知りたい!』
『家づくりに興味がある!』といった方には面白い内容になるのではないかと思うので、皆様どうぞお楽しみください✨
栄えある第一回目は、Y様ご夫婦の『身も心も大の児な暮らし』です!実はこちらのお客様、以前のお宅もミセガマエヤがリノベーションを担当させて頂きました。なので今回は2度目のリノベーション依頼となります!ありがとうございます🥰前回のリノベーションしたお宅はこちら!↓
https://dev.misegamaeya.net/jirei_extraordinary/
※今回のリノベーションはこちら物件とは異なります。
| おうちのテーマ:身も心も“大の児”な暮らし |
ご夫婦と可愛いワンちゃんの三人暮らしをされているご家族の新たなおうちのテーマは『身も心も“大の児”な暮らし』大の児とは、『大の字になって寝ころべるような』と『子どものような大人』の二つの意味が掛けられています。
あそび心を持って、心も体も開放的に、そして日々の生活に余裕を待って過ごせるように、また生活にメリハリを持って過ごせるような、、、そんな暮らしを望まれていました。
| ミセガマエヤのプラン |
こちらはお客様の家づくりのテーマを基に、
■家の中でワガママに過ごせる
■メリハリのある生活
■変幻自在に形が変えられる
■いろんな遊び方ができる
■仲の良いご夫婦の会話が弾む
■ワンちゃんに優しい空間
といったコンセプトでプランニングさせて頂きました!
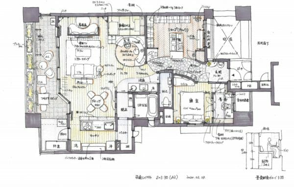
玄関入ってすぐ目の前に広がるのは、まるでDisneyの世界。おうちに入ってしょっぱなからウキウキワクワクが止まりません。そして石畳のフロアを進んでいくと、右手に奥様の愛する洋服たちがきれいに陳列された、ご夫婦専用ブティックが…👗✨こちらはショップのような間取りになっており、ショップ店員になった気分で、毎日のコーディネートを楽しく彩ってくれます。
ショップを通り過ぎると目の前に広がるのは、広々開放的なLDK。
あえて洗面台を外に出し、開放的な気分で朝の支度ができる間取りに。朝日に包まれ憂鬱な気分も吹き飛ばしてくれます。そして洗面台の横には小さな小窓が。こちらはお風呂と繋がっているため、お風呂に居ながら会話が楽しめる仕様です☺
キッチンは2人で料理を楽しんで頂けるよう、広く取り、混雑しないよう回遊導線にしました!パントリーも設けているので、食材もスッキリ片付く快適キッチンです🍳💕
そして元気に一日がスタートできるよう、朝の景色が一番きれいに見える位置にダイニングを設けました。素敵な景色を眺め、朝食をとれば「今日は何をしよっかな?」毎朝ルンルン気分になりそうですね。
そしてリビングの一角に設けられたこちらのスペースは、、、

そしてリビングの一角にあるこちらのスペースは
ご夫婦二人だけの名付けてラブラブクリエイティブ居酒屋(名付け親:社長)です!ここでご飯を食べてもいいし、お酒を飲んでもいいし気分に合わせて活用していただける空間になっています。壁をマグネットボードにして、会話から生まれたアイディアを書き留めておくことも可能です🥰
そして寝室はこちら!
朝活をされる旦那様が、寝ている奥様を起こすことなく作業できるよう、小上がりの書斎を寝室に設けました!書斎の下は大容量の収納ができるようになっています。書斎の窓を開けて今日も元気に『おはよう🌞!』
こんな感じでお家のいたるところに居場所を作り、日常の一コマ一コマを楽しんで頂けるような間取りにプランニングしてみました🧐!
まずはこれをたたき台として、Y様と打ち合わせを重ね、もっともっと素敵なY様らしいお家に変身していく予定です✨どんなお家になるのか、社員全員とっても楽しみにしています!
それでは、今日はこの辺で!
皆さんにとって今日も素敵な一日になりますように!!井上でした!
| ミセガマエヤのプランニングは、ジブンミッケルワークを通してとにかくお客様の求める暮らしを叶える家づくりを重視しています。そのため、家づくりを始める前にまずは『お客様を知る』という事にとてつもない時間をかけています。
『どんなところで歯を磨きたいですか?』『リビングでどんな気持ちを得たいですか?』『どんな自分になりたいですか?』 そんなことを聞きながらお客様一人一人の求める暮らしを明確にし、十人十色の暮らしを叶える家づくりをしています。是非ご興味のある方はお気軽にお問い合わせください。皆様の理想の暮らしをいっぱい聞かせてくださいね🥰お問い合わせはこちらから |











-1500x894.jpg)