こんにちは!ミセガマエヤの井上です🌞
本日は、ミセガマエヤの大人気コーナー家づくり物語をお送りしたいと思います!
| 家づくり物語とは? 家づくり物語とは、実際にミセガマエヤで施工されたお客様の、「ヒアリング」から「引き渡し」までをトータルに密着し、理想の暮らしが叶うまでのリアルな家づくりの過程をお届けしようじゃないか!といった企画です。 |
―M様の家づくり物語―
【第1話】プラン編
【第2話】工事中編
【第3話】 完成編
【第4話】 引越し編
今回はM様ご家族の「時間と心にゆとりのある自然体な暮らし―完成編―」をお届けします。
| 【前回までのあらすじ】ミセガマエヤが提案したプラン |
ご夫婦共働きでとっても忙しいM様ご夫妻。少しでも時間にゆとりが持てるように、そして家族との時間をとれるようなお家を意識してプランさせて頂きました♪
▼ゆとり時間を育む仕掛け
| ・どろんこになって帰ってきても大丈夫!玄関速攻洗面所。 ・家族の服はすべてここで完結!ファミリーWIC ・キッチンすぐ横ダイニングで料理の配膳楽々に♪ ・お手伝いしたくなる◎絶対に混雑しない回遊キッチン。 ・「適材適所」の収納だから家族みんなで家事を分担! ・ワークスペースがあるから仕事用具があちこちに散らかりません。 |
▼家族時間を育む仕掛け
| ・たくさんの居場所があるから自然と集まりたくなるLDK ・リビング横のワークスペースは仕事をしてても家族を感じます ・キッチンに立つお母さんと自然と目が合う小上がりリビング ・親子で楽しく宿題も♪リビング脇のちょこっとスタディーコーナー ・縁側にもなる絶景小上がりは家族のおしゃべりを育みます |
| ついに完成!!!!!!! |
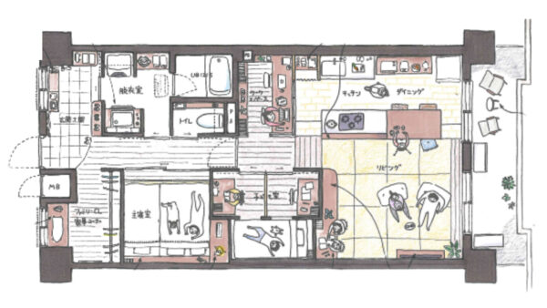
玄関の扉を開くと、マンションにも関わらず広々とした土間空間が広がります。ベビーカーや自転車なども置いていただる位の余裕があります♪
そして玄関奥からは、直接洗面所に行けるようになっているので、お子様がどろんこになって帰ってきても、すぐにシャワーが浴びられるため、リビングが汚れる心配がありません!
玄関入ってすぐ右側には、ファミリークローゼットがあります👗✨
玄関からすぐの場所にクローゼットがあるため、仕事着から部屋着にすぐ着替えられたり、冬場はコートをすぐに掛けておけるなど、大変便利◎
ここに家族の服をすべて収納しているので、わざわざ各自の部屋に服を持っていく必要がなく、家事もラクラクです♪
さて!リビングの扉を開くと一番手前にワークスペースがあります。
こちらのワークスペースは背面に大容量本棚があるので、お仕事で使うものや、本やノートといったんものはすべてここに収納していただけるため、リビングにモノが溢れることがありません!
そしてワークスペースからは、こんな風にキッチンやダイニングの様子を見ていただくことができるので、在宅でお仕事をしているときでも、リビングで遊ぶお子様の様子を見ながら作業をすることができるので安心です◎
そしてワークスペースの前にはキッチン&ダイニング空間があります。
キッチンは回遊動線になっているため、家族で並んで立っても絶対に混雑しません!
パントリーや収納棚はオープンにしているので、どこに何があるのか一目瞭然!
お母さんだけでなく、家族全員が家事をしたくなる仕掛けです♬
そして光と風が入って、とっても気持ちのいい場所には、小上がりリビング空間が広がります~☀
小上がり横の掃き出し窓からは、近くに流れる小川や菜の花、そして青空が一望でき、本当に最高の絶景なんです!
小上がりの一角には、工事中の段階からお子様のお気に入りの場所だった「スタディーコーナー」!
リビングでくつろぐ家族に見守られながらする宿題は、一人でこもって勉強するよりもはかどりそうです📒✏
▼動画で全体を見ていただくとこんな感じです~✨
| 気になるお客様の反応やいかに、、、 |
実際に気に入ってくださるのか、毎度毎度本当に緊張するのですが、M様ご家族は大変喜んで下さりました!
お子様は小上がりから見える絶景を眺めたり、走り回ったり、お気に入りのスタディーコーナー小上がりに隠れたりと、早速新たなお家を楽しんでくれていました🤭🌟
M様ご夫婦も「これからの暮らしがとっても楽しみです」とおっしゃられていました😳💕
引き渡しの際にメンテナンスに来ていた職人さんの仕事ぶりを、しっかりチェックしてくれているお子様。
丁寧な仕事ぶりに安心したお子様は、この数分後にはお部屋を走り回って遊んでいました🤭🌟
これからこのお家が、M様ご家族風にどんな風に彩られていくのか、すごく楽しみです!
これから続くM様ご家族の日々が、いつまでも幸せでありますように!とスタッフ一同心より願っております。
また何かありましたら、いつでも、なんでもお気軽にミセガマエヤに相談してくださいね😊!
| 次回いよいよお引越し!「整理収納アドバイザー」が立ち会います! |
さてさて。ついに完成したM様邸!
しかし本当に大変なのは、引っ越し作業です。
M様ご家族の引っ越しはうまくいくのでしょうか!?気になる模様は、次回「お引越し編」でたっぷりお届けするので、お楽しみに~😊✨
それでは今日もあなたにとって素敵な一日になります ように!井上でした!






















-1500x894.jpg)